Продажа 1-комнатной квартиры

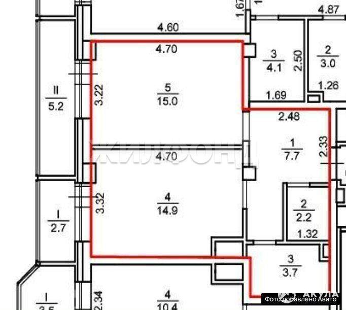
53 м²
Площадь
36 м²
Жилая площадь
10 м²
Площадь кухни
3/14
Этаж

7 500 000 ₽

141 510 ₽ за м²

ID объявления 12004411

Поделиться

Добавить в избранное

Продаём просторную 1к квартиру в Академгородке идеальное место для тех, кто ценит тишину, комфорт и природу. Общая площадь 55 м? с лоджиями (44 м? по документам) . В подарок парковка в собственности, оформлена как отдельный объект недвижимости. Преимущества квартиры: полноценная однушка с классической планировкой, чистая, уютная и тёплая, готова к проживанию, две лоджии редкость для однокомнатных квартир. В квартире остаётся: кухонный гарнитур, холодильник, стиральная машина, водонагреватель. , два шкафа-купе. , кровать Аsсоn Еrgо Еmоtiоn по договорённости. Район и инфраструктура: Академгородок тихий и зелёный район, рядом школа, детский сад, поликлиника, для активного отдыха лыжная база и спортивные площадки, удобный двор, спокойные соседи. Юридическая чистота. Один собственник. Без обременений и долгов. Быстрый выход на сделку. Отличный вариант как для собственного проживания, так и для сдачи в аренду.



При звонке, пожалуйста, сообщите номер варианта -

JV001070111522

Дата обновления: 22 октября 2025

Квартира От собственника